JB-QB-EI6000L型火灾报警控制器是依爱消防公司为适应小工程、小点数的需求专门开发的新一代火灾报警控制器,具有火灾报警、监管报警、联动 控制、网络通讯等功能,满足国标GB4717-2005的要求,特别适用于计算机房、资料室、配电室、变电站、通讯基站、餐厅、酒吧等小型消防报警工程的 应用。
JB-QB-EI6000L型火灾报警控制器采用壁挂式结构,结构小巧、外形美观,功能全面、配置灵活,可靠性高,液晶汉字显示,操作使用方便。
主要技术指标
· 交流输入电压:220V±1015%, 50Hz±1%
· 交流输入功率:≤80W
· 直流备电:DC24V/2.2Ah,全密封免维护蓄电池
· 使用环境温度:0℃~40℃;湿度:≤95% (不凝露)
· 容量:32点、64点、96点、128点可选
· DC24V输出:≤1A
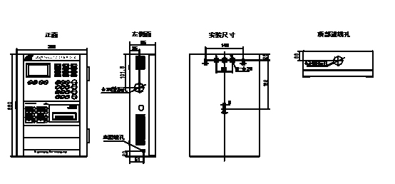
· 外形尺寸:380mm×260mm×95mm
基本功能
· 火灾报警功能,能通过感烟探测器、感温探测器、输入模块、手动报警按钮等火灾触发器件接收火灾报警信号,显示火警信息。可根据相邻探测器进行复合判断。
· 联动控制功能,能通过输入输出模块根据报警信息控制消防设备,可显示设备动作反馈信息,可选配12点总线联动控制盘、4路多线联动控制盘。
· 监管报警功能,能通过输入模块接收盗警、可燃气报警、水流指示器报警、压力开关动作等信号,实现监管报警,并可实现联动。
· 屏蔽功能,能够对各总线部件进行屏蔽,能够对火灾声光警报输出进行屏蔽。
· 故障检测功能,能自动检测线路故障、部件故障、电源故障等,以声、光信号发出故障警报,显示故障信息。
· 系统测试功能,能登录部件编号及当前地址,可直接进行地址设置、编程;能查看探测器检测值;能够对回路任一部件进行自检。
· 网络通讯功能,可通过依爱网EINet实现局域联网通讯;具有RS-232/485串行通讯接口,可与楼宇自动化或其它系统相连;可通过本公司远程监控系统进行远程通讯。
· 黑匣子功能,能自动存储火警、预警、监管、故障等历史记录信息。
· 打印功能,能自动打印火警、预警、监管等信息,并能打印部件清单等。
· 主、备电自动切换功能,能进行主、备电自动切换,并具有相应的指示。
· 操作权限,为防止无关人员误操作,可通过密码限定操作级别,密码可任意设置。
选配说明
· J-EI6122型总线联动键盘:12键,每键对应有命令、反馈指示灯。
· J-EI6123型多线联动键盘:4键,4路直接输出,具有故障、请求、命令、反馈状态指示。
· J-EI6115型依爱网卡:用于连接其它火灾报警控制器、计算机CRT显示系统,构成EINet®网络系统。
· J-EI6116型串行网卡:RS-232/485接口,可连接EI系列远程监控系统、楼宇自控系统,可自动上传报警、联动、监管、故障等信息。
外形结构

安装
本控制器采取壁挂安装,其底边距地面高度不应小于1.5m,后箱体有3个安装孔,可用M8的金属膨胀螺栓固定在墙壁上,固定应牢固、端正,安装在轻质墙上时应采取加固措施。靠近门轴的侧面距离不应小于0.5m,正面操作距离不应小于1.2m。
控制器的显示操作面板应避开阳光直射,房间内无高温、高湿、尘土、腐蚀性气体;不受振动、冲击等影响。
接线端子
接线说明
· 接线板
位于箱体左上角,其中:
S+、S-:回路两总线端子,用于接智能型火灾探测器和其它编码部件。
24V+、24V-:24V电源输出端子,供外部设备使用,出厂时与24V1+、24V1-(内部24V电源
端子)短接,当使用外控24V电源时,需将该短接线(即11、12号线)拆掉,将外控电源的24V接到24V+、24V-端子上。
FO、FC:火警输出端子,继电器无源输出端子(常开)。
F+、F-:火警输出端子,火警时动作,24V有源输出(F+、F-分别为24V正、负极)。
GO、GC:故障输出端子,故障时动作,无源常开接点。
· 直接输出多线联动接线板(选装)
位于箱体右侧中部,C1-、C1+~C4-、C4+分别为1~4路多线联动输出端子,可分别与多线联动模块的对应输入端子相连,用于控制某些重要设备。
· 电源接线
控制器箱体左下角有三个交流电源接线端子,分别为L、N、G,L接火线、N接零线、G接地线,接线应当符合**有关标准的要求。

